トップページ > 物件検索 【中古住宅】

南本町売ビル

事務所、診療所、介護施設最適!
スーパー徒歩1分(^^)/

価格 280万円

物件種別 中古住宅
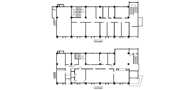
敷地面積 994.95㎡ (300.97坪)
建物面積 616.07㎡ (186.36坪)
所在地 上越市南本町二丁目13番14
 》地図を見る
交通 妙高はねうまライン南高田駅徒約11分
道路 南側9.2M上越市道(除雪有)
建物構造 鉄筋コンクリート造陸屋根2階建
築年月 1973年10月新築
設備の概要 公営水道、都市ガス、本下水、東北電力
引渡時期 相談
学校区 南本町小、城西中
取引形態 仲介(専属専任媒介契約)

お気軽にお問い合わせください

日成商事株式会社 宅地建物取引業免許 新潟県知事(13) 861号
〒943-0805 新潟県上越市木田1-8-11

物件検索

  • 物件種別 
  • エリア  
  • 間取り  
  • 築年数  
  • 賃 料  
          ~

▲ PAGE TOP