トップページ > 物件検索 【貸店舗・貸事務所】

リバーハイツ日成 1階テナントA 

県立中央病院近くの交差点にあるマンションの1階部分です
シンプルで使いやすい1ルーム!
駐車場4台付!

賃料 11.42万円 (共・管なし) 敷:2ヶ月 礼:0ヶ月 仲介手数料:0円

物件種別 貸店舗・貸事務所
契約期間 2年(更新可)
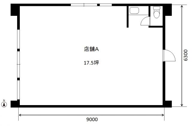
間取 1フロア
所在地 上越市鴨島3丁目7-46
 》地図を見る
交通 妙高はねうまライン高田駅車約8分
鴨島3丁目バス停留所 徒歩約2分
契約一時金 114,200円 
町内会費 800円 
面積 56.7m² (17.15坪)
建物構造 鉄筋コンクリート造 5階建
部屋階数 1階部分
駐車場 4台込み
築年月 平成7年
設備 トイレ:専用
消雪設備:あり
引渡時期 令和7年1月上旬
借家人賠責保険 要加入
取引形態 貸主

お気軽にお問い合わせください

日成商事株式会社 宅地建物取引業免許 新潟県知事(13) 861号
〒943-0805 新潟県上越市木田1-8-11

物件検索

  • 物件種別 
  • エリア  
  • 間取り  
  • 築年数  
  • 賃 料  
          ~

▲ PAGE TOP