トップページ > 物件検索 【貸店舗・貸事務所】

下源入店舗B

国道8号線沿い 平成28年9月リフォーム済ヽ(^o^)丿

賃料 39.6万円 (共・管なし) 敷:3ヶ月 礼:0ヶ月 仲介手数料:0円

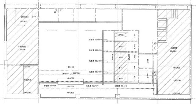
1F平面図(現況を優先致します。)

2F平面図(現況を優先致します。)

物件種別 貸店舗・貸事務所
契約期間 5年間(更新可)
所在地 上越市下源入500
 》地図を見る
交通 妙高はねうまライン直江津駅徒歩約29分
町内会費 別途
面積 433.62m² (131.17坪)
部屋階数 2階
駐車場 車12台以上可
築年月 1985年4月
設備 東北電力、プロパンガス、公営水道、本下水
引渡時期 即時
借家人賠責保険 要加入
取引形態 貸主
備考 契約一時金1ヶ月要

お気軽にお問い合わせください

日成商事株式会社 宅地建物取引業免許 新潟県知事(13) 861号
〒943-0805 新潟県上越市木田1-8-11

物件検索

  • 物件種別 
  • エリア  
  • 間取り  
  • 築年数  
  • 賃 料  
          ~

▲ PAGE TOP